Projects
Hotels
Housing
Commercial
Prototype Design
Projects Map
Renovations
Services
The Firm
Firm Profile
Our Team
Careers
Contact
Projects
Hotels
Housing
Commercial
Prototype Design
Projects Map
Renovations
Services
The Firm
Firm Profile
Our Team
Careers
Contact
Offices
15200 52nd Ave S
Tukwila, WA, 98188
United States
206-766-8300
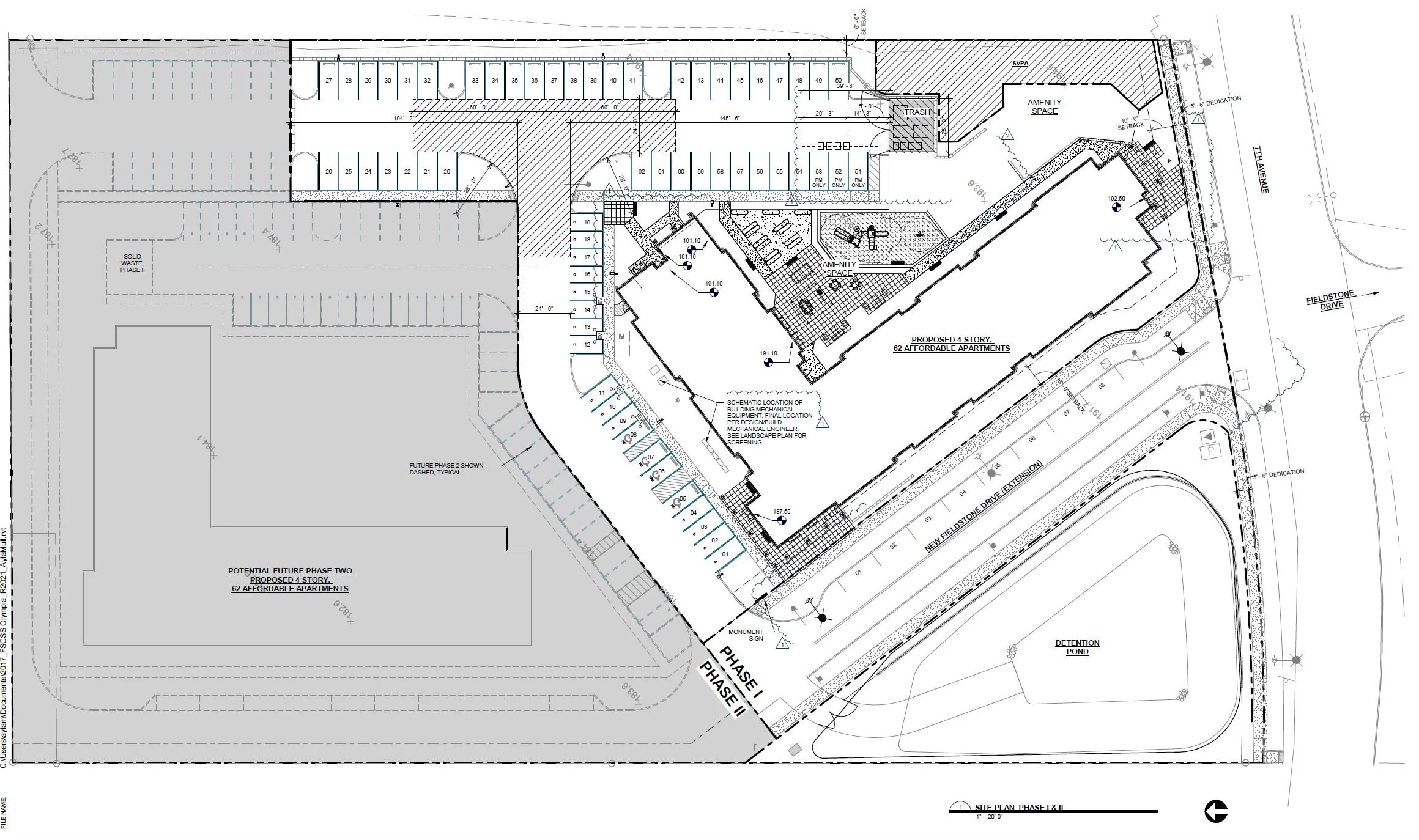
FSCFS - Olympia